Retail Properties

Moreno Valley Plaza, Ltd.

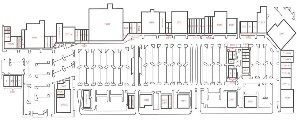
12591-12595 Heacock Street 23583-23965 Sunnymeade Blvd.Moreno Valley, CA 92553

Property Description

Regional Retail Shopping Center built between 1983-1989, 16 buildings and 1,734 parking spaces Anchored by: Office Depot, Superior Grocer, Big Lots, Goodwill, Big 5, Radio Shack and McDonald's. Totaling 341,011 Square feet